北島創意園辦公樓裝修設計 身所文化發展有限公司
面積 :2000平方米 / 地址 :廣州市海珠區北島創意園 / 點擊 :1076
步入身所文化發展有限公司辦公空間內,首先映入您眼簾的是現代簡潔、充滿魅力的前臺空間、北歐風小家具提升整體氛圍,“熱力四射、陽光青春”,這是海博裝飾為身所量身定制的辦公空間!辦公室區域精致的抽象畫,結合大面積的自然采光,使得整個空間富麗,新穎別致。沿用北歐風家具輕巧纖細的曲線裝飾更升華了身所辦公樓裝修設計空間的整體韻味。木色地面,時尚簡約休閑椅,白色墻壁,燈光投射恰如其分,空間鮮活鮮活的,就像是年輕人的生命,充滿陽光、朝氣。【身所二號樓】

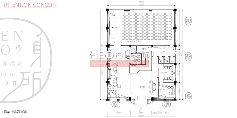
身所文化發展公司辦公樓裝修設計 首層平面方案

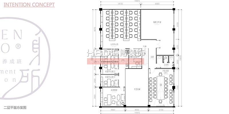
身所文化發展公司辦公樓裝修設計 二層平面方案

身所文化發展公司辦公樓裝修設計 首層大堂

身所文化發展公司辦公樓裝修設計 首層展示區

身所文化發展公司辦公樓裝修設計 首層設計總監和服裝設計部

身所文化發展公司辦公樓裝修設計 首層多功能培訓室

身所文化發展公司辦公樓裝修設計 首層衛生間

身所文化發展公司辦公樓裝修設計 二層公共辦公室

身所文化發展公司辦公樓裝修設計 二層公共辦公室

身所文化發展公司辦公樓裝修設計 二層大會議室

身所文化發展公司辦公樓裝修設計 二層總經理辦公室

身所文化發展公司辦公樓裝修設計 二層總監辦公室

身所文化發展公司辦公樓裝修設計 身所外立面
- 上一案例:現代簡約辦公樓裝修設計 身所文化發展有限公司
- 下一案例:時尚魅力辦公樓裝修設計 身所杭州華東大區分部
137-1150-4887
在線咨詢
